2021年全国十大考古新发现!宜春国字山战国墓葬入围初评
2月26日
2021年度全国十大考古新发现
初评结果揭晓!
根据投票结果
得票数前20位的项目入围
2021年度全国十大考古新发现终评
樟树国字山战国墓葬
早前,在宜春樟树市,考古人员发现了一座东周时期的高等级墓藏,这座墓葬的发掘已经持续了四年多。

去年12月25日下午,经国家文物局、北京大学、中国社会科学院考古研究所、陕西省考古研究院等30多位专家共同对樟树市国字山越王室大墓考古发掘成果进行论证,首次对外公布——
国字山墓葬是迄今江西地区考古发现规模最大的东周时期墓葬,国字山墓葬的发掘是越国与越文化考古的新突破,对于研究越国历史有着重要的学术意义!


根据出土遗物等推断,墓葬时代在战国中期。国字山墓葬是迄今江西地区考古发现规模最大的东周时期墓葬。墓主有着很高的身份地位,推测是越国王室贵族。


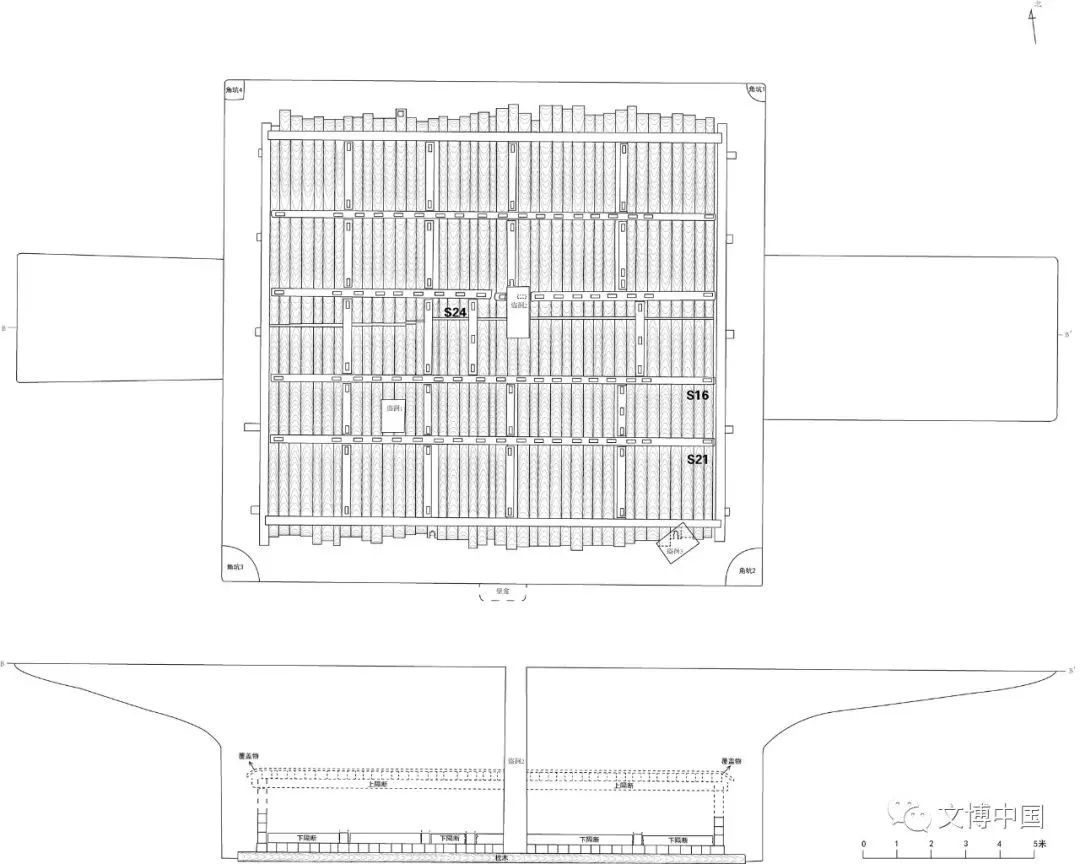
M1墓主棺及陪葬棺

墓葬是东西向中字形竖穴土坑墓。墓葬周边有近长方形围沟环绕。墓室东西长约16米,南北宽约14.4米。椁室呈长方形箱体,由下方的垫木、底板,周边的侧板和盖板组成。椁室各部位均使用楠木。椁盖板上有金黄色木皮覆盖。椁室内由隔断和立柱分隔成井然有序的25个分室。椁室内放置7具棺木。其中主棺是船形独木棺,位于椁室中部,另6具陪葬棺分置于周边分室内。



铜提梁盉
两件铜盉


瑟

国字山墓出土 筝
最为重要的是墓内出土的两件有铭铜戈(戟)。经专家考证,铭文分别是“者殹自乍用戟”和“於戉台王旨殹之大子不(?)寿自乍元用矛”。器主分别为越王勾践的玄孙翳(公元前410~前375年)和翳的一个儿子不(?)寿。

不寿戈(戟)
者殹戈(戟)
不寿戈(戟)

青铜鸠杖的跽坐人形镦
壁龛内出土陶罐和陶豆

乐器架立柱和器座

鎏金铜剑柄
除了突出的越文化因素,国字山墓葬还有相当数量的楚文化因素和群舒文化因素,体现出多种文化因素交融共存的特征,对于研究作为 “吴头楚尾”的江西地区东周时期的吴越楚关系、政治格局演变和“中华文明多元一体”进程等具有极为重要学术价值。

玉龙

玉凤

玉龙凤



出土的陶瓷器




























